
LEASING
1st Floor + 2nd Floor (Suite 100)


1ST FLOOR & 2ND FLOOR
8,635 RSF
-
Floor 2 - 4,996 RSF
-
Floor 1 - 3,639 RSF
1st Floor + Lower Level (Suite 150)

1ST FLOOR & LOWER LEVEL
4,593 RSF
-
Floor 1 - 2,007 RSF
-
Lower Level - 2,586 RSF
3RD FLOOR

3RD FLOOR
5,651 RSF
-
Brand New Creative Spec Suite
-
Open Space with 28 Workstations
-
5 Conference Rooms
-
1 Private Office
-
2 Telephone Rooms
-
Kitchen / Break Area
-
I.T. / Storage Room
-
Exposed Ceilings
-
Private Restrooms
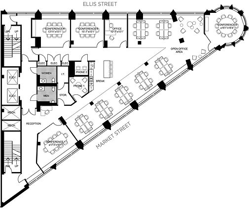
4TH FLOOR

4TH FLOOR
5,631 RSF
-
Open space with 44 workstations
-
3 Conference Rooms
-
Kitchen
-
Private Restrooms
-
Fully Furnished
5TH FLOOR

5TH FLOOR
5,631 RSF
-
Open space with 38 workstations
-
5 Conference Rooms
-
Kitchen
-
I.T. Room
-
Private Restrooms
-
Fully Furnished
7TH FLOOR

7TH FLOOR
5,649 RSF
-
Open Collaborative Work Area
-
Open Space for 30+ Workstations
-
2 Large Conference Rooms
-
4 Private Offices
-
Kitchen / Break Area
-
I.T. / Storage Room
-
Private Restrooms
8TH FLOOR

8TH FLOOR
5,667 RSF
-
1 Boardroom with Bar & Lounge
-
3 Conference Rooms
-
Reception Area
-
Open Space for +/- 32 Workstations
-
Open Collaborative Area
-
Private Restrooms
-
Partially Furnished
